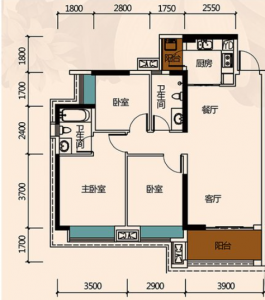
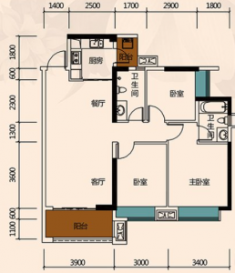
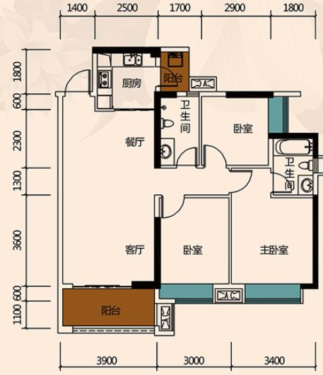
远洋·翡丽郡是远洋地产在中山深耕11年后,集合远洋城和远洋启宸两大楼盘的大成经验倾力打造的又一项目。项目位居南头镇政府发展区域,据守三大城市主干道交汇处,属2000亩华南家电城商住配套区,这里将打造为家电研发中心、原材料供应中心、物流营销和商务中心;同时周边拥有一站式的商业配套、教育配套、公园、生活市场等,为北部人开启“住宅+商业”的一站式全新生活理念。 小区分两期开发,一期已全部封顶,二期在建,现在在售的是78-138平米二至四房,外立面使用了远洋经典的新古典主义风格,香槟金色的外墙砖,十分高档;楼栋分布采用平行半围和式设计,保证各个户型的通风采光。二期中央园林约8000平米,超宽楼距,视野好;小区居住舒适度高,内部设有儿童游乐区以及老人活动区等人性化设施;一层架空层会有泛会所可供休闲娱乐。 小区物业是由远洋物业管理,远洋物业被评为国家二级资质,新三板上市的物业服务公司,实力可见,同时由远洋自己的物业管理。地下一层停车库,比例为0.9:1。小区东面是北帝私家建筑,西面500m内就是广济医院、南头中心小学、华晖学校,南面1000m内是三鑫学校、南头初中、穗西市场;北面为政府规划25万㎡大型商业用地。

申请借款